LPD500B电气火灾监控设备
- 厂家信息
- 产品信息
- 规格参数
- 技术文档
产品图片
LPD500B电气火灾监控设备

产品介绍:
LPD500B电气火灾监控系统是以电气火灾早期预警监控为主要目的,应用数字化技术,采用分布式设计方案推出的新--代电气火灾监控系统。系统由电气火灾监控设备、组合式电气火灾监控探测器以及剩余电流互感器、温度探测器组成。组合式电气火灾监控探测器用于监测用电回路中剩余电流、负荷电流、电缆温度等参数,同时上传至监控设备实现集中控制和集中管理;当用电回路中相关参数异常时,监控设备发出声光报警,指示报警部位,同时现场探测器发出声光报警和控制信号,提醒用户对隐患线路进行排查或者更换,降低由于电气原因造成火灾的风险。该监控设备具有RS485通讯接口,与探测器( 监控模块)进行数据交换;采用Modbus-RTU通讯协议, 可与其它标准系统相连接;通过友好的人机交互界面,实时反映出被监控设备电源的状况,并集中显示,从而有效避免在火灾发生时电气设备由于电源故障而无法正常工作的危急情况,最大限度的保障消防联动系统的可靠性。
产品特点:
以高性能的ARM内核处理器为核心,运行工业级嵌入式实时操作系统;
二级操作权限设置,方便管理;实时监控,精确定位报警点;
可选4路RS485通信接口,最多可连接256个探测器(2048个 探测回路);
1路RS485通信接口方便与其他后台系统或控制中心通讯,可选配1路RJ45以太网数字接口;
具备声光报警功能并显示报警回路,支持消音、自检功能和复位功能;
2路继电器输出,方便报瞥输出和故障检测;
自备打印机,方便打印报警记录;
内置Web服务器,可实时远程访问和通过以太网配置探测器和装置系统参数;
支持连接独立式或非独式探测器;
自备后备电源,保证4小时内连续供电;
电池活化,自维护和管理。
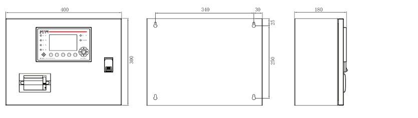
外形尺寸及安装尺寸:

产品介绍:
LPD500B电气火灾监控系统是以电气火灾早期预警监控为主要目的,应用数字化技术,采用分布式设计方案推出的新--代电气火灾监控系统。系统由电气火灾监控设备、组合式电气火灾监控探测器以及剩余电流互感器、温度探测器组成。组合式电气火灾监控探测器用于监测用电回路中剩余电流、负荷电流、电缆温度等参数,同时上传至监控设备实现集中控制和集中管理;当用电回路中相关参数异常时,监控设备发出声光报警,指示报警部位,同时现场探测器发出声光报警和控制信号,提醒用户对隐患线路进行排查或者更换,降低由于电气原因造成火灾的风险。该监控设备具有RS485通讯接口,与探测器( 监控模块)进行数据交换;采用Modbus-RTU通讯协议, 可与其它标准系统相连接;通过友好的人机交互界面,实时反映出被监控设备电源的状况,并集中显示,从而有效避免在火灾发生时电气设备由于电源故障而无法正常工作的危急情况,最大限度的保障消防联动系统的可靠性。
产品特点:
以高性能的ARM内核处理器为核心,运行工业级嵌入式实时操作系统;
二级操作权限设置,方便管理;实时监控,精确定位报警点;
可选4路RS485通信接口,最多可连接256个探测器(2048个 探测回路);
1路RS485通信接口方便与其他后台系统或控制中心通讯,可选配1路RJ45以太网数字接口;
具备声光报警功能并显示报警回路,支持消音、自检功能和复位功能;
2路继电器输出,方便报瞥输出和故障检测;
自备打印机,方便打印报警记录;
内置Web服务器,可实时远程访问和通过以太网配置探测器和装置系统参数;
支持连接独立式或非独式探测器;
自备后备电源,保证4小时内连续供电;
电池活化,自维护和管理。
